No.7 Cahairfuiseog, Herbertstown, Limerick
No.7 Cahairfuiseog, Herbertstown, Limerick
This property is no longer available.
No.7 Cahairfuiseog, Herbertstown, Limerick
Herbertstown, Co. Limerick
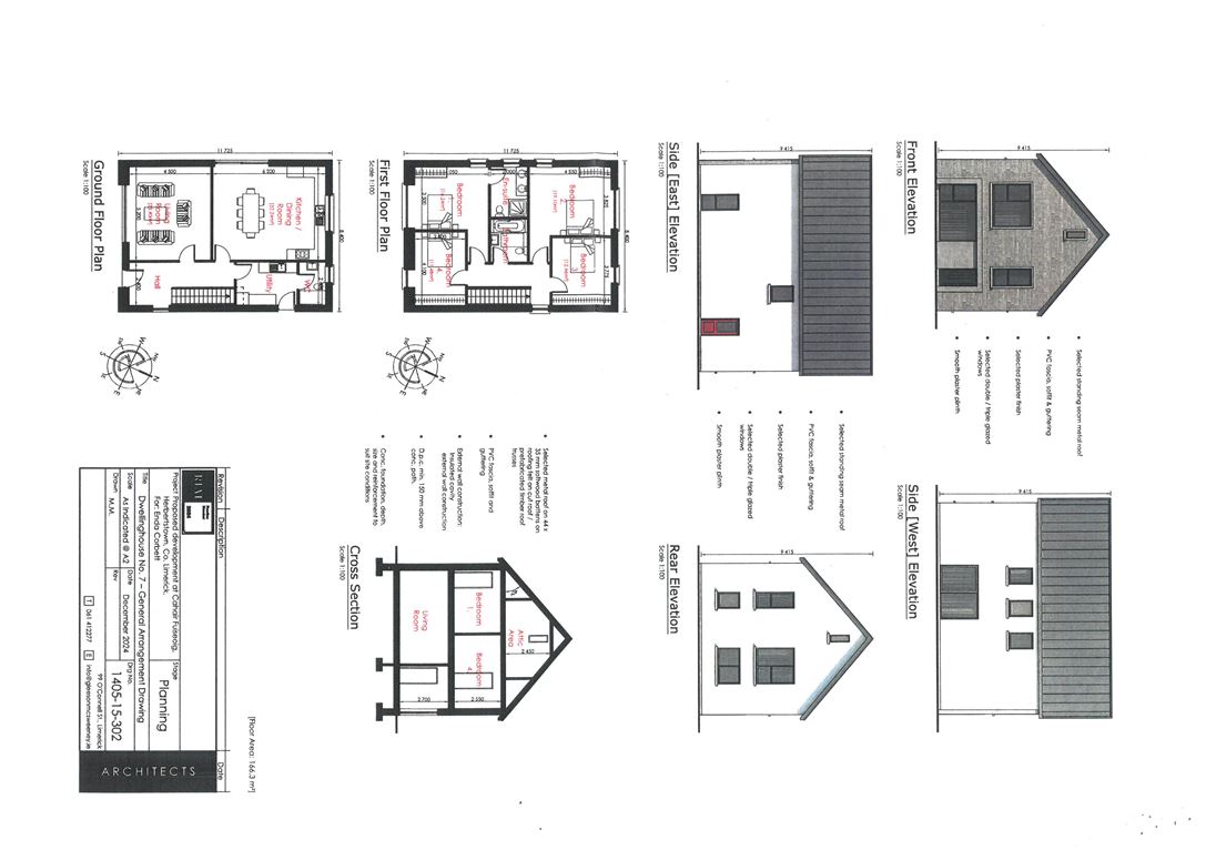
Detached House 166.3sq. m
Sale Agreed






Description
4 BEDROOM DETACHED EXTENDING TO 166.30 SQ.M.
Builders Finish
Currently Under Construction – Completion Date: February 2026
Accommodation Comprises:
Entrance Hall
Livingroom 5.2m x 4.5m
Kitchen/Diningroom 6.2m x 4.5m
Utility
WC
First Floor
Landing Area
Bedroom (1)` 3.5m x 4.05m Ensuite Bathroom
Bedroom (2) 4.5m x 3.8m
Bedroom (3)
Bedroom (4) 4.1m x 3.8m
Main Bathroom
Qualifies for Help to Buy Scheme
A Rated
Air to Water Heating
Will be completed to Builders Finish
Ideally Located just a short walk to local amenities
Just 22kms from Limerick City & 24kms from Tipperary Town.
Herbertstown Neighbourhood Guide
Explore other properties and sales history in Herbertstown.