Mongfune, Murroe, Limerick
Mongfune, Murroe, Limerick
Mongfune, Murroe, Limerick
Murroe, Co. Limerick
Detached House 204.29sq. m
€175,000
For Sale






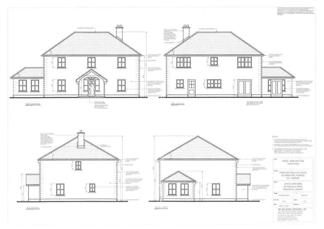
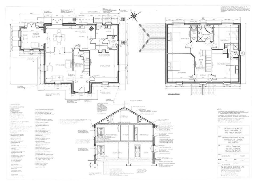
Description
PARTIALLY COMPLETED HOUSE ON ONE ACRE
- Local Need will apply for Purchaser
- Blockwork Completed
- Extending to 2200 Sq. Ft.
- Located on Outskirts of Murroe within easy access of Limerick
Final Planning Permission for following Accommodation:
Kitchen/Diningroom 7.9m x 4.7m
Sunroom 3.65m x 3.35m
Sittingroom 4.38m x 4.73m
Office/Study 4.33m x 5.2m
Utility/ Accessible Toilet
First Floor Large Landing Area
Master Bedroom 4.33m x 5.0m Ensuite Bathroom
Bedroom (2) 3.86m x 4.2m
Bedroom (3) 4.33m x 4.53m
Bedroom (4) 4.53m x 3.65m
Bathroom 2.65m x 2.6m
Site is serviced by Mains Water
Eclectic supply pass front of Site
Been passed for waste water treatment system and polishing filter to service the house
Map, Plans etc available on request
Located Directly Opposite Eircode V94YO3W
Murroe Neighbourhood Guide
Explore prices, growth, people and lifestyle in Murroe.