Bridge Street, Knocklong, Limerick
Bridge Street, Knocklong, Limerick
This property is no longer available.
Bridge Street, Knocklong, Limerick
Knocklong, Co. Limerick
New Development
Sale Agreed












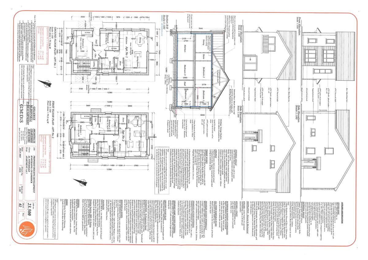
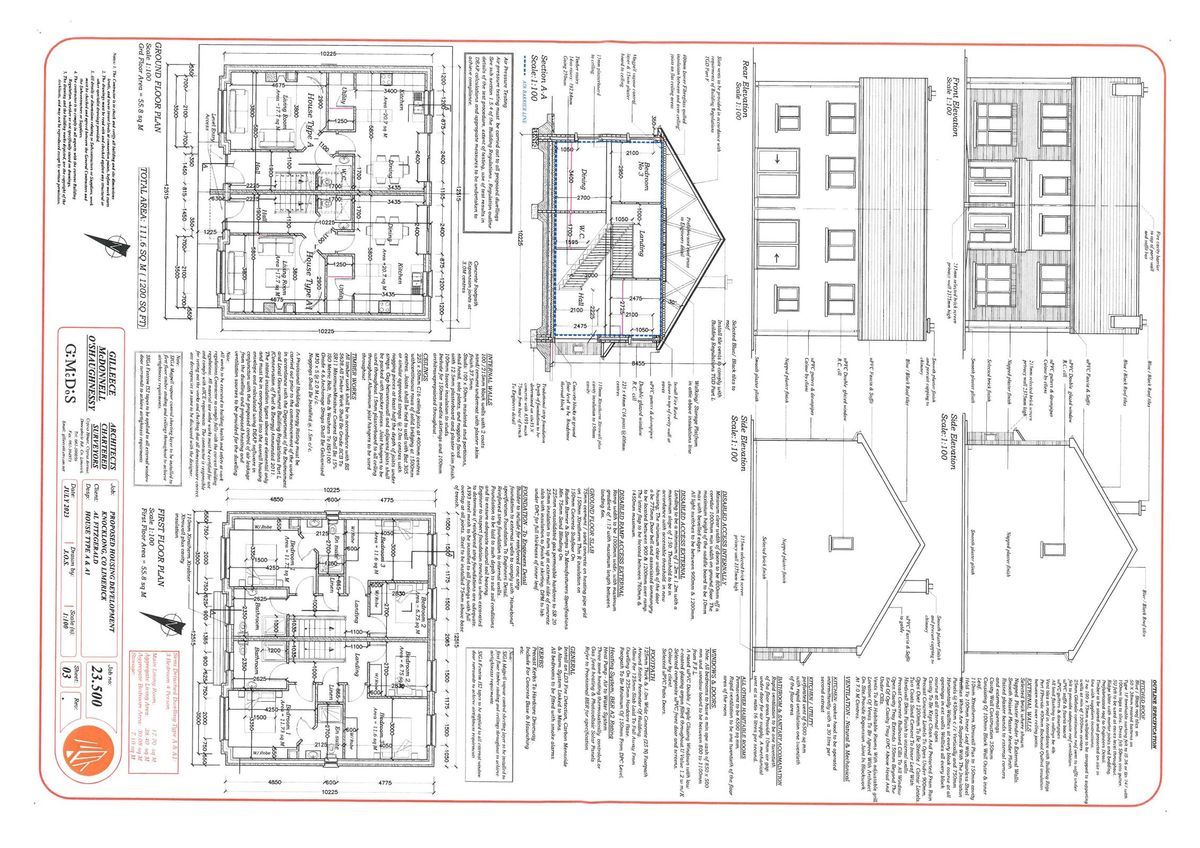
Description
- 2 No. 2 Bedroom Apartments 756 Sq. Ft. - Now Sale Agreed
- 2 No. 3 Bedroom Semi Detached 1200 Sq. Ft.
Currently Under Construction
Completion Date : June 2024
Qualify for Help to Buy Scheme
Located 30 Mins from Limerick, 60 Mins from Cork and 20 Mins from Tipperary
A2 Rated
Air to Water Heating
Qualifies for HTB Scheme
Turn Key Finish
Short walk to local amenities Primary school, Preschool, Community Centre, Sports Field and Shops & Restaurant
Full Details on Request