26 Castlecourt, Kilmallock, Limerick
26 Castlecourt, Kilmallock, Limerick
This property is no longer available.
26 Castlecourt, Kilmallock, Limerick
Kilmallock, Co. Limerick, V35 P977
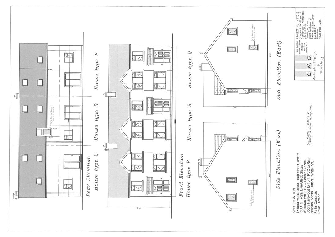
Terraced House 94sq. m
Sale Agreed








Description
MID TERRACE HOUSE COMPLETION DATE Sept 2025
TURNKEY FINISH
A2 RATED
AIR TO WATER HEATING
TOP QUALITY CONSTRUCTION
QUALIFIES FOR HELP TO BUY SCHEME
FURTHER DETAILS FROM WHEELER AUCTIONEERS.
Floorplan
Kilmallock Neighbourhood Guide
Explore other properties and sales history in Kilmallock.